Interior Design II focuses on two major projects, "house project" and "group lighting project", along with occasional classroom assignments. The design process is the foundation for this course.
Interior Design II
FACS 250 - 002
House Project - the "Saffer Home" entails a complete renovation, from top to bottom. Through the design process, a space is created for a family of five (and two dogs).
01
Mood Board
The first phase of the "Saffer Home" renovations was a mood board. This establishes a style or sort of aesthetic a designer plans to have for their client's home while still maintaining a sense of function. Photoshop was used to create this board and utilize "the grid".


02
Adjacency Matrix
The Saffer Home's second phase was to demonstrate desirable relationships between rooms with an adjacency matrix. A diagram with room names was drawn up, then, it was up to the designer to determine if rooms were primary, secondary, or undesirable in relation to one another.
03
Bubble Diagrams
Bubble diagrams are a way to brainstorm and organize possible floor plans, arranging rooms in a way that is logical as well as functional. Rooms are determined to be private, public, or semi-private/public, using that to decide room proximity to one another Designers must also keep in mind the flow, maintaining functionalism in the process.

04
Blocking Plan
After choosing the best bubble diagram, rooms are blocked off and color-coded according to privacy level - this is called a block plan. Blocking plans are similar to bubble diagrams, but uses the constraints of a floor plan. This way, any foundation walls, doors, or anything similar that cannot be moved is taken into consideration.
05
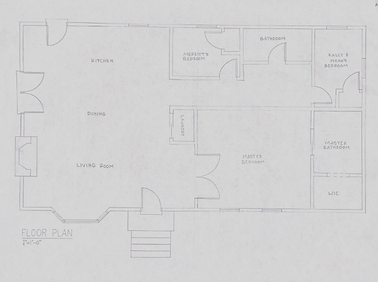
Preliminary Floor Plan
The third phase is the preliminary plan. Using the previous blocking plan, the same concept is used but is drafted neatly and logically. This phase simply shows walls and doors, to get an idea of space and proportions.


06
Floor Plan
Adding on to the preliminary plan, a much more detailed plan, or refined plan, is drafted. A refined plan contains furniture, cabinets, and fixtures. In this case for the Saffers, designers were to take into consideration ADA standards, including five foot turnarounds for wheelchairs.
07
Model
Using foam core, to-scale floor plans were made 3D. Incorporating tubs, toilets, cabinetry, etc. puts the layout of a house into persepctive. In doing this, an understanding of how natural light impacts the flow of movement within spaces.

08
FF&E Board
FF&E boards essentially bring a mood board to life. Detailing color schemes, lighting fixtures, and even right down to cabinetry can really make an idea become a reality. While Mrs. Saffer wanted color, her husband preferred classic palettes. Combining both of their styles not only pleased them both but created a unique, balanced aesthetic.
09
Presentation
Once all five phases of the Saffer Home were completed, designers' work was compiled into a single presentation, showcasing the work done for this family of five. From the beginning to end, progress and changes were shown.
Reflected Ceiling Plan - As a group, updates were made to a home regarding its lighting fixtures. Three forms of these fixtures were added: task, ambient, and accent.

10
Lighting Project
The final project for FACS 250 was a group lighting project. This entailed choosing lighting fixtures and creating a specification sheet as well as an RCP in AutoCad. This project showcased designers' utilization of different types of lighting.
.png)












